1 / 100

Yogi Bear's Jellystone Park™ Camp-Resort: Glen Ellis

Hosted by Sun · Glen, New Hampshire
295 sites · RV, Tent, Lodging
First Hipcamper Club
Earn this patch by being the first to spend a night outside at a new Hipcamp.
Big rig-friendly
Spacious, level camping well-suited for travel trailers over 40 ft long.
Full RV hookups
Electrical, water, and sewage hookups are available at select sites.
Creature comforts
Enjoy the comforts of home at some sites—including flush toilets, showers, and a kitchen.
Discover the unique charm of Jellystone Park™ Glen Ellis, a 2024 CAMPSPOT AWARDS WINNER, where family fun and relaxation come together in a picturesque setting. This campground offers a variety of accommodations, including rustic sites, riverfront spots, and cozy cabins, ensuring a perfect fit for every type of camper. Beyond the park's amenities, which include a refreshing swimming pool and a delightful ice cream bar, the surrounding Mt. Washington Valley beckons outdoor enthusiasts. With thousands of miles of hiking trails, visitors can explore breathtaking landscapes, uncover hidden swimming holes, and even venture into intriguing underground caves. For those seeking water adventures, the nearby Saco River provides opportunities for kayaking, canoeing, and tubing, making it easy to enjoy a day on the water. After a day of exploration, unwind at local restaurants and shops that add to the vibrant community atmosphere. Jellystone Park™ Glen Ellis is not just a campground; it's a gateway to unforgettable family experiences in nature.
from
$50
/ night
295 sites

Select a site

Filter by

Tent-only sites

4 sites

Riverfront Tent Site

Tent site · Sleeps 8
Fall asleep to the sound of the river in a Riverfront tent site. Club Yogi™ Rewards Level 2. Pets are not allowed on tent sites.
Campfires allowed
Toilet
Potable water
No pets
Showers
Picnic table
from
$73
/ night
for 4 guests

Riverfront Wilderness Tent Site

Tent site · Sleeps 8
Enjoy both the shade of trees, and the river access in our Riverfront Wilderness sites. Club Yogi™ Rewards Level 1. Pets are not allowed on tent sites. Cars cannot be parked at these sites. Please park your car in the parking lot nearby.
Campfires allowed
Toilet
Potable water
No pets
Showers
Picnic table
from
$68
/ night
for 4 guests

Rustic Wilderness Tent Site

Tent site · Sleeps 8
Connect with nature at one of our rustic wilderness tent sites in the woods. Club Yogi™ Rewards Level 1. Pets are not allowed on tent sites.
Campfires allowed
Toilet
Potable water
No pets
Showers
Picnic table
from
$50
/ night
for 4 guests

Wilderness Tent Site

Tent site · Sleeps 8
Connect with nature at one of our wilderness tent sites in the woods. Club Yogi™ Rewards Level 1. Pets are not allowed on tent sites. Cars cannot be parked at these sites. Please park your car in the parking lot nearby.
Campfires allowed
Toilet
Potable water
No pets
Showers
Picnic table
from
$52
/ night
for 4 guests

RV/tent sites

4 sites

Premium Back-In RV Site

RV/tent site · Sleeps 8 · Vehicles under 50 ft
Enjoy these wooded sites with 30/50 amp electric, sewer, and water. Club Yogi™ Rewards Level 3. RV Sites booked with tents, pop-ups, or hybrids do not allow pets.
Campfires allowed
Toilet
Potable water
Pets allowed
Electrical hookup
Water hookup
from
$80
/ night
for 4 guests

Premium Pull-Thru RV Site

RV/tent site · Sleeps 8 · Vehicles under 50 ft
Enjoy these wooded sites with 30-amp electric, sewer, and water. Club Yogi™ Rewards Level 3. RV Sites booked with tents, pop-ups, or hybrids do not allow pets.
Campfires allowed
Toilet
Potable water
Pets allowed
Electrical hookup
Water hookup
from
$88
/ night
for 4 guests

Riverfront Standard RV Site

RV/tent site · Sleeps 8 · Vehicles under 30 ft
Wake up to the sun glinting off the river at one of these RV sites. 30 amp electric and water hookups. Club Yogi™ Rewards Level 2. RV sites booked with tents, pop-ups, or hybrids do not allow pets.
Campfires allowed
Toilet
Potable water
Pets allowed
Electrical hookup
Water hookup
from
$96
/ night
for 4 guests

Riverfront Standard RV/Tent Site

RV/tent site · Sleeps 8 · Vehicles under 26 ft
Enjoy the sound of the river, and connect with nature at one of these sites! These sites are smaller, making them great for anyone camping with a tent, pop-up, or trailer. Club Yogi™ Rewards Level 2. 120V Electric and water hook up on site. RV sites booked with tents, pop-ups, or hybrids do not allow pets.
Campfires allowed
Toilet
Potable water
No pets
Electrical hookup
Water hookup
from
$60
/ night
for 4 guests

RV-only sites

2 sites

Riverfront Premium RV Site

Vehicle site · Sleeps 8 · Vehicles under 34 ft
Wake up to the sun glinting off the river at one of these RV sites. 30/50 amp electric, water, and sewer hookups. RV Sites booked with tents, pop-ups, or hybrids do not allow pets. Club Yogi™ Rewards Level 3.
Campfires allowed
Toilet
Potable water
Pets allowed
Electrical hookup
Water hookup
from
$111
/ night
for 4 guests

Standard Back-In RV Site

Vehicle site · Sleeps 8 · Vehicles under 34 ft
Enjoy the sound of the rustling leaves at these back-in sites with 30 amp electric and water hookups. RV sites booked with tents, pop-ups, or hybrids do not allow pets.
Campfires allowed
Toilet
Potable water
Pets allowed
Electrical hookup
Water hookup
from
$61
/ night
for 4 guests

Lodging

20 sites

Bear-A-Dise Bungalow

Bungalow · Sleeps 2
These tiny bungalows are great for a small family! Take this as a front row seat to the stunning sunsets and easy access to the swimming hole! These units feature a TV/DVD player (no cable/streaming available), a full bath, and a kitchen. Outside, you can enjoy a picnic table, fire ring, and charcoal grill. Sleeps up to 5 (maximum of 2 adults). No smoking. Pets are not allowed in cabins. Club Yogi™ Rewards Level 6. *Please note - linens, blankets, and pillows are NOT included in your stay. You can bring your own or add linen rentals to your reservation on the add-ons page when you check out.
Campfires allowed
Toilet
Potable water
No pets
Showers
Picnic table
from
$300
/ night
for 2 guests

Black Bear Escape Cabin

Cabin · Sleeps 7
Stay cool in the shade of your furnished screened-in porch, or bask in the sun.. These units feature AC/heat, a full bath, a kitchenette, a TV/DVD Player (no cable/streaming available), and a dining table and chairs. Outside, you can enjoy a picnic table, fire ring, and charcoal grill. Sleeps up to 7. No smoking. Pets are not allowed in cabins. Club Yogi™ Rewards Level 7. *Please note - linens, blankets, and pillows are NOT included in your stay. You can bring your own or add linen rentals to your reservation on the add-ons page when you check out.
Campfires allowed
Toilet
Potable water
No pets
Showers
Picnic table
from
$350
/ night
for 4 guests

Black Bear Escape Cabin Pet

Cabin · Sleeps 4
Stay cool in the shade of your furnished screened-in porch, or bask in the sun.. These units feature AC/heat, a full bath, a kitchenette, a TV/DVD Player (no cable/streaming available), and a dining table and chairs. Outside, you can enjoy a picnic table, fire ring, and charcoal grill. Sleeps up to 7. No smoking. Club Yogi™ Rewards Level 7. *Please note - linens, blankets,and pillows are NOT included in your stay. You can bring your own or add linen rentals to your reservation on the add-ons page when you check out.
Campfires allowed
Toilet
Potable water
Pets allowed
Showers
Picnic table
from
$196
/ night
for 4 guests

Boo Boo™ Beachfront Cabin

Cabin · Sleeps 7
Stay cool in the shade of your furnished screened-in porch, or bask in the sun with just a short walk to the swimming hole. These units feature AC/heat, a full bath, a kitchenette, a TV/DVD Player (no cable/streaming available), a private hot tub, and a dining table and chairs. Outside, you can enjoy a picnic table, fire ring, and charcoal grill. Sleeps up to 7. No smoking. Pets are not allowed in cabins. Club Yogi™ Rewards Level 7 *Please note - linens, blankets, and pillows are NOT included in your stay. You can bring your own or add linen rentals to your reservation on the add-ons page when you checkout.
Campfires allowed
Toilet
Potable water
No pets
Showers
Picnic table
from
$267
/ night
for 4 guests

Boo Boo™ Plus Cabin

Cabin · Sleeps 7
Stay cool in the shade of your furnished screened-in porch, or bask in the sun with just a short walk to the swimming hole. These units feature AC/heat, a full bath, a kitchenette, a TV/DVD Player (no cable/streaming available), and a dining table and chairs. Outside, you can enjoy a hot tub, picnic table, fire ring, and charcoal grill. Sleeps up to 7. No smoking. Pets are not allowed in cabins. Club Yogi™ Rewards Level 7. *Please note - linens, blankets, and pillows are NOT included in your stay. You can bring your own or add linen rentals to your reservation on the add-ons page when you check out.
Campfires allowed
Toilet
Potable water
No pets
Showers
Picnic table
from
$445
/ night
for 4 guests

Cindy Bear™ Cabin

Cabin · Sleeps 4
Our Cindy Bear™ Cabins are located on our main road, right by all of the action! These units feature AC/heat, TV/DVD player (no cable/streaming available), a full bath, a kitchen, and a dining table and chairs. Outside, you can enjoy a picnic table, fire ring, and charcoal grill. Sleeps up to 7. No smoking. Club Yogi™ Rewards Level 7. *Please note - linens, blankets, and pillows are NOT included in your stay. You can bring your own or add linen rentals to your reservation on the add-ons page when you check out.
Campfires allowed
Toilet
Potable water
No pets
Showers
Picnic table
from
$398
/ night
for 4 guests

Ellis Riverfront Cabin

Cabin · Sleeps 4
Fall asleep to the sound of the Ellis River in these lovely cabins! These units feature AC/heat, TV/DVD player (no cable/streaming available), a full bath, a kitchenette, and a dining table and chairs. Outside you can enjoy a picnic table, fire ring, and charcoal grill. Sleeps up to 7. No smoking. Pets are not allowed in cabins. Club Yogi™ Rewards Level 7. *Please note - linens, blankets, pillows are NOT included in your stay. You can bring your own or add linen rentals to your reservation on the add-ons page when you checkout.
Campfires allowed
Toilet
Potable water
No pets
Showers
Picnic table
from
$416
/ night
for 4 guests

Ellis Riverfront Glamping Pod

Glamping pod · Sleeps 4
Wake up to the sound of the river when you choose this unique, camping experience! With locations on both the Ellis River and the Saco River. You will enjoy this cozy glamping pod with sleeping arrangements for up to 4 with a Queen size bed and a futon. Grill, fire pit, patio, outdoor seating, electric and water access at the site- no water inside the cabin. Club Yogi™ Rewards Level 5.
Campfires allowed
Toilet
Potable water
No pets
Showers
Picnic table
from
$262
/ night
for 4 guests

Luxury Glamping Pod

Glamping pod · Sleeps 4
The Luxury Glamping Pod is perfect for a small group! Cozy up in the A-frame unit featuring accommodations for up 4 people, full bath, and kitchenette. Outside you can enjoy stunning sunset views with amenities such as a picnic table, charcoal grill and fire ring. Pets are not allowed in cabins. No smoking *Please note - linens, blankets, pillows are NOT included in your stay. You can bring your own or add linen rentals to your reservation on the add-ons page when you checkout.
Campfires allowed
Toilet
Potable water
No pets
Showers
Picnic table
from
$271
/ night
for 4 guests

Meadow Haven Cabin

Cabin · Sleeps 7
Surrounded by mountain views and scattered throughout the park, you're sure to find the perfect spot for your vacation in these cabins. These units feature AC/heat, a full bath, a kitchen, TV/DVD Player (no cable/streaming available), and a dining table and chairs. Outside you can enjoy a picnic table, fire ring, and charcoal grill. Sleeps up to 7. No smoking. Club Yogi™ Rewards Level 7. *Please note - linens, blankets, pillows are NOT included in your stay. You can bring your own or add linen rentals to your reservation on the add-ons page when you checkout.
Campfires allowed
Toilet
Potable water
No pets
Showers
Picnic table
from
$224
/ night
for 4 guests

Meadow Haven Cabin Pet

Cabin · Sleeps 4
Surrounded by mountain views and scattered throughout the park, you're sure to find the perfect spot for your vacation in these cabins. These units feature AC/heat, a full bath, a kitchen, a TV/DVD Player (no cable/streaming available), and a dining table and chairs. Outside, you can enjoy a picnic table, fire ring, and charcoal grill. Sleeps up to 7. No smoking. Club Yogi™ Rewards Level 7. *Please note - linens, blankets, and pillows are NOT included in your stay. You can bring your own or add linen rentals to your reservation on the add-ons page when you check out.
Campfires allowed
Toilet
Potable water
Pets allowed
Showers
Picnic table
from
$224
/ night
for 4 guests

Meadow Haven Cabin Pet & Accessible

Cabin · Sleeps 5
Surrounded by mountain views, your family will love these cabins! Our ADA and pet-friendly Meadow Haven Cabins feature AC/heat, a full bath, a kitchen, a TV/DVD Player (no cable/streaming available), and a dining table and chairs. Outside, you can enjoy a picnic table, fire ring, and charcoal grill. Sleeps up to 7. No smoking. Club Yogi™ Rewards Level 7. *Please note - linens, blankets, and pillows are NOT included in your stay. You can bring your own or add linen rentals to your reservation on the add-ons page when you check out.
Campfires allowed
Toilet
Potable water
Pets allowed
Showers
Picnic table
from
$224
/ night
for 4 guests

Ranger's Retreat Cabin

Cabin · Sleeps 4
These cabins are perfect for the family who enjoys being in nature with the conveniences of home! In these units, you will be nestled in the shaded woods with a view of the river from your front porch. These units feature AC/heat, a full bath, a kitchen, a TV/DVD Player (no cable/streaming available), and a dining table and chairs. Outside, you can enjoy a picnic table, fire ring, and charcoal grill. Sleeps up to 7. No smoking. Club Yogi™ Rewards Level 7. *Please note - linens, blankets,and pillows are NOT included in your stay. You can bring your own or add linen rentals to your reservation on the add-ons page when you check out.
Campfires allowed
Toilet
Potable water
No pets
Showers
Picnic table
from
$241
/ night
for 4 guests

River Camp Cottage

Cabin · Sleeps 6
You're just a short walk away from our sports courts and attractions, and the Saco River in these cabins. These units feature AC/heat, TV/DVD player (no cable/streaming available), a full bath, a kitchenette, and a dining table and chairs. Outside, you can enjoy a picnic table, fire ring, and charcoal grill. Sleeps up to 6. No smoking. Club Yogi™ Rewards Level 7. *Please note - linens, blankets, and pillows are NOT included in your stay. You can bring your own or add linen rentals to your reservation on the add-ons page when you checkout.
Campfires allowed
Toilet
Potable water
No pets
Showers
Picnic table
from
$155
/ night
for 4 guests

Riverfront Saco Sunset Cabin

Cabin · Sleeps 7
You're just a short walk away from our sports courts and attractions in these cabins. These units feature AC/heat, TV/DVD player (no cable/streaming available), a full bath, a kitchen, and a dining table and chairs. Outside, you can enjoy a picnic table, fire ring, and charcoal grill. Sleeps up to 7. No smoking. Club Yogi™ Rewards Level 7. *Please note - linens, blankets, and pillows are NOT included in your stay. You can bring your own or add linen rentals to your reservation on the add-ons page when you check out.
Campfires allowed
Toilet
Potable water
No pets
Showers
Picnic table
from
$245
/ night
for 4 guests

Saco Riverfront Glamping Pod

Glamping pod · Sleeps 4
Wake up to the sound of the river when you choose this unique, camping experience! You will enjoy this cozy glamping pod with sleeping arrangements for up to 4 with a Queen size bed and a futon. Grill, fire pit, patio, outdoor seating, electric and water access at the site- no water inside the cabin. Club Yogi™ Rewards Level 5.
Campfires allowed
Toilet
Potable water
No pets
Showers
Picnic table
from
$130
/ night
for 4 guests

Saco Sunset Cabin

Cabin · Sleeps 7
You're just a short walk away from our sport courts and attractions in these cabins. These units feature AC/heat, TV/DVD player (no cable/streaming available), a full bath, a kitchen, and a dining table and chairs. Outside you can enjoy a picnic table, fire ring, and charcoal grill. Sleeps up to 7. No smoking. Club Yogi™ Rewards Level 7. *Please note - linens, blankets, pillows are NOT included in your stay. You can bring your own or add linen rentals to your reservation on the add-ons page when you checkout.
Campfires allowed
Toilet
Potable water
Pets allowed
Showers
Picnic table
from
$205
/ night
for 4 guests

Woodland Escape Cabin

Cabin · Sleeps 8
These cabins are perfect for the family who enjoys being in nature with the conveniences of home! In these units, you will be nestled in the shaded woods right across from the Ellis River. These units feature AC/heat, a full bath, a kitchen, TV/DVD Player (no cable/streaming available), and a dining table and chairs. Outside you can enjoy a picnic table, fire ring, and charcoal grill. Sleeps up to 7. No smoking. Club Yogi™ Rewards Level 7. *Please note - linens, blankets, pillows are NOT included in your stay. You can bring your own or add linen rentals to your reservation on the add-ons page when you checkout.
Campfires allowed
Toilet
Potable water
No pets
Showers
Picnic table
from
$232
/ night
for 4 guests

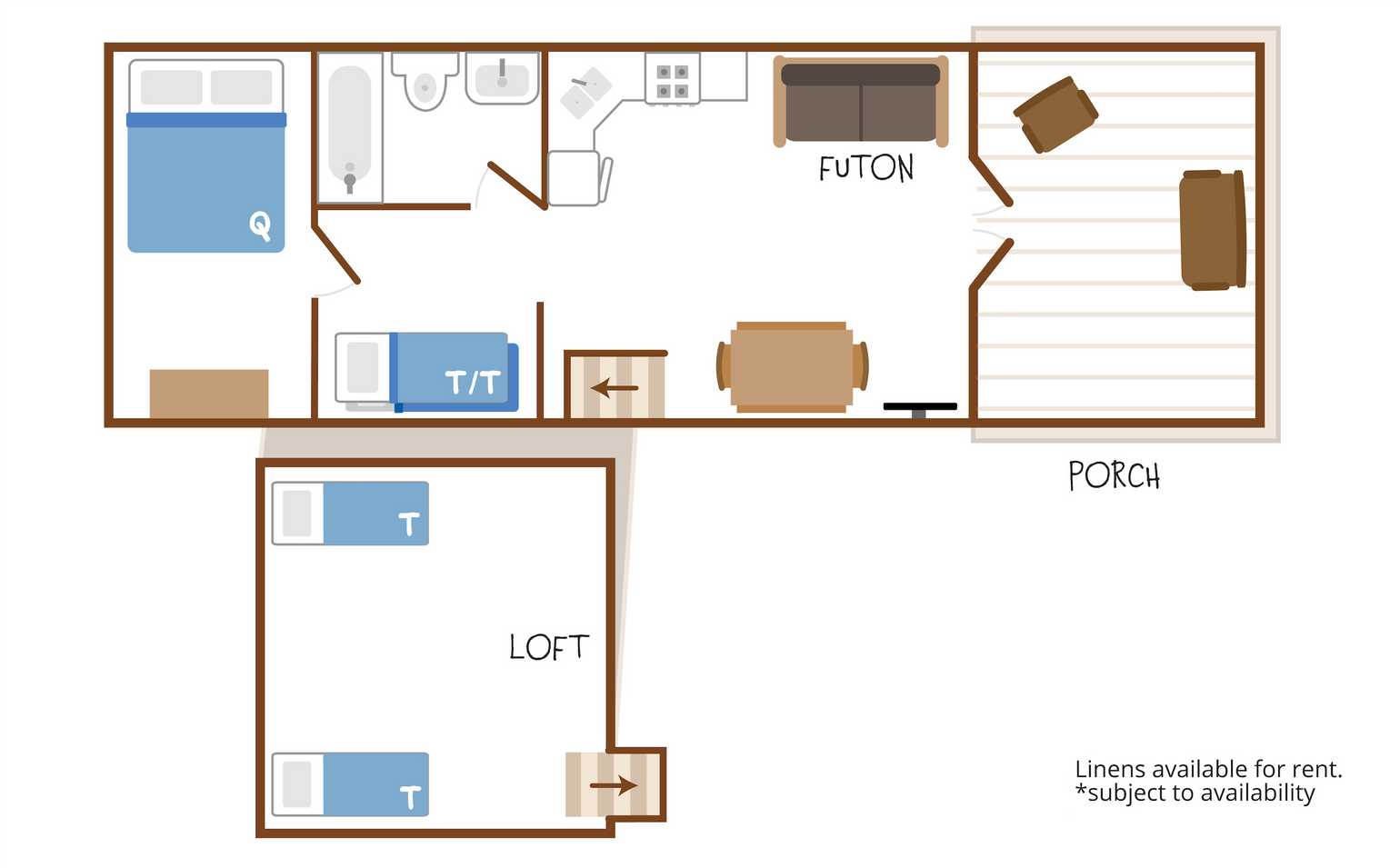
Yogi Bear™ Hideaway

Cabin · Sleeps 8
Stay cool in the shade of your furnished screened-in porch, or bask in the sun. These units feature AC/heat, a full bath, a full kitchen, a TV/DVD Player (no cable/streaming available), and a dining table and chairs. Outside, you can enjoy a picnic table, fire ring, and charcoal grill. Sleeps up to 8 with a queen bed, twin bunk bed, loft space with two full mattresses, & futon. No smoking. Pets are not allowed in cabins. Club Yogi™ Rewards Level 7. *Please note - linens, blankets, and pillows are NOT included in your stay. You can bring your own or add linen rentals to your reservation on the add-ons page when you check out.
Campfires allowed
Toilet
Potable water
No pets
Showers
Picnic table
from
$189
/ night
for 4 guests

Yogi Bear™ Hideaway Pet

Cabin · Sleeps 8
Stay cool in the shade of your furnished screened-in porch, or bask in the sun. These units feature AC/heat, a full bath, a full kitchen, TV/DVD Player (no cable/streaming available), and a dining table and chairs. Outside you can enjoy a picnic table, fire ring, and charcoal grill. Sleeps up to 8 with a queen bed, twin bunk bed, loft space with two full mattresses, & futon. No smoking. Club Yogi™ Rewards Level 7. *Please note - linens, blankets, pillows are NOT included in your stay. You can bring your own or add linen rentals to your reservation on the add-ons page when you checkout.
Campfires allowed
Toilet
Potable water
Pets allowed
Showers
Picnic table
from
$189
/ night
for 4 guests
from
$50
/ night
295 sites
Be the first to review
Share your experience here to help other campers.

Location

Glen, Carroll County, New Hampshire, United StatesTo respect the Host's privacy, the precise address of this land will be provided after booking
Avatar

Hosted by Sun Outdoors P.

Joined in July 2025
Response rate: 98%Response time: Within an hour

About us

Everywhere You Want To Camp™

Hipcamp is the #1 camping app to find and book campsites, from national parks to blueberry farms. Explore our collection of over 500,000 iconic public lands, well-equipped RV resorts, and private sites you won't find anywhere else. Browse our comprehensive maps, filter by your camping style, read millions of real reviews, and create free availability alerts. Hipcamp is the simplest way to find yourself outside under the stars. Camp Your Way®

Get Hipcamp, the #1 camping app.

© 2026 Hipcamp, Inc. All rights reserved.
Hipcamp is created with ❤️ and hope for our future.